Underfloor Heating for a renovation in a Chelmsford home
As part of this Chelmsford renovation, we’re installing a modern underfloor heating system powered by an air source heat pump. The result is even, low-temperature warmth throughout the home, improved energy efficiency, and reduced running costs. Discreet, comfortable, and designed for long-term performance, this system is a smart upgrade for modern living.
:quality(75))
Technologies Designed and Installed on this Project
:quality(50))
Underfloor Heating
:quality(50))
Heat Pumps
Project Challenges
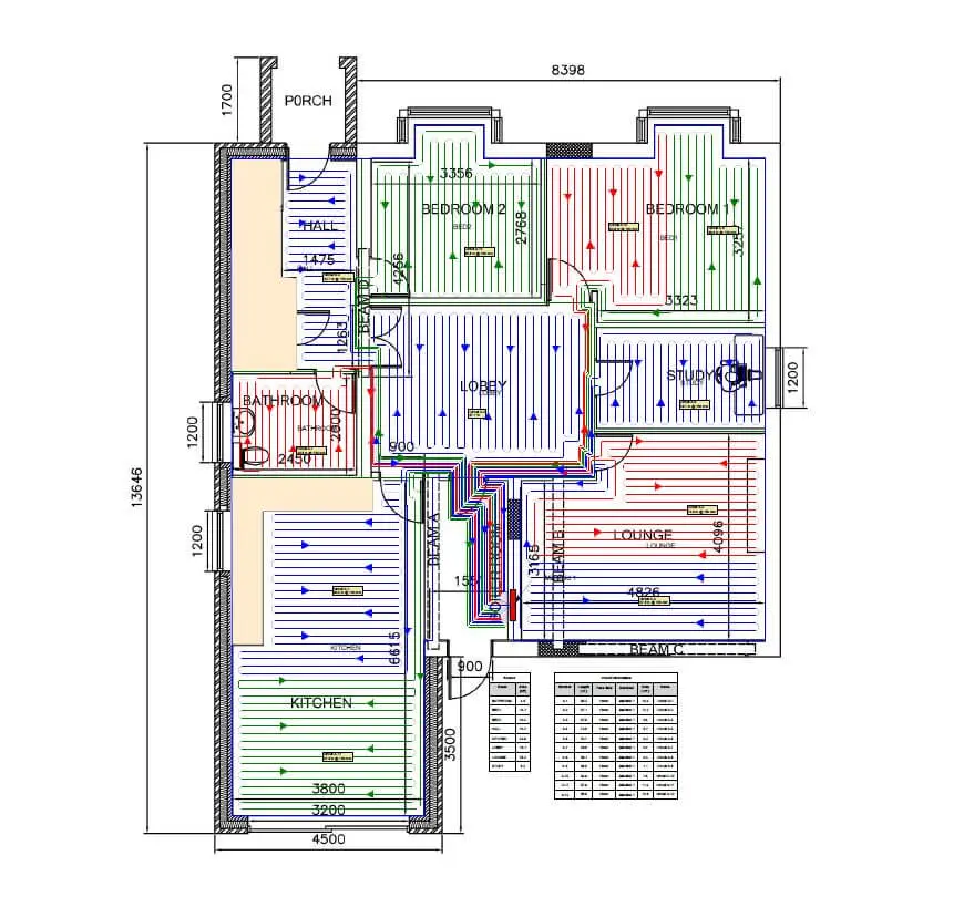
One of the key challenges on this project was designing a heating system that would perform consistently across a building combining both existing and newly renovated fabric. Older areas of the property presented different heat loss characteristics to the newly upgraded spaces, requiring a carefully balanced approach to system design.
The underfloor heating was engineered as a low-temperature system to work efficiently with a Vaillant air source heat pump. This meant precise pipe spacing, flow rates, and zoning to ensure even heat distribution without overloading the system or compromising comfort in any part of the home.
Achieving seamless performance across old and new construction required detailed heat loss calculations and a coordinated design that allowed the heat pump, underfloor heating, and controls to operate as one integrated system. The result is a balanced, efficient setup that delivers consistent comfort while maximising the performance and longevity of the heat pump.
:quality(50))
Really happy with the results, my feet are cosy all year round.
Results
The completed system delivers consistent, even warmth throughout the home, with the underfloor heating operating efficiently at low flow temperatures in perfect alignment with the Vaillant air source heat pump. By balancing the system across both the original structure and the newly renovated areas, the heating performs seamlessly despite the differing fabric of the building.
The homeowner benefits from improved comfort, reduced running costs, and a future-ready heating system designed for long-term efficiency and reliability. The discreet nature of underfloor heating also enhances usable space and interior aesthetics, while the heat pump provides a sustainable, low-carbon solution suited to modern living.
Overall, the project demonstrates how careful design and system integration can unlock the full performance potential of low-temperature heating in mixed-fabric renovation properties.
:quality(50))